Find your new home in Northeast Ohio
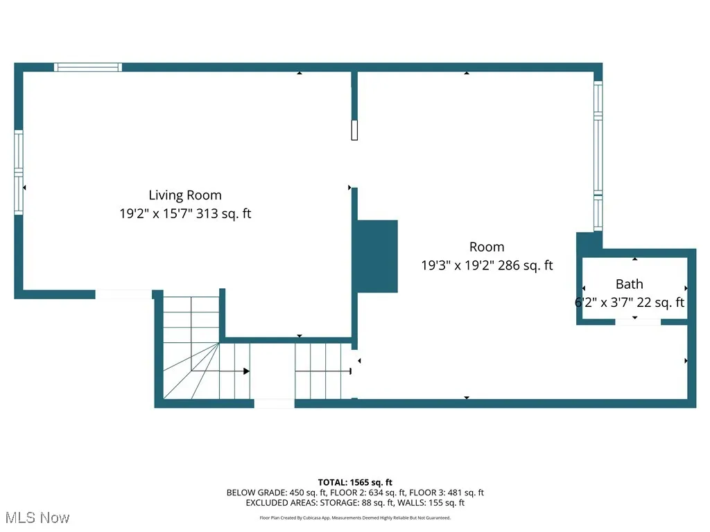
Exceptional commercial opportunity in Elyria! This fully remodeled freestanding office building offers approximately 3,000 square feet of flexible finished space across 3 levels, including a finished walkout basement with a private rear entrance. The property features 3 exits—front, side, and back—for convenient access & tenant separation. A new AC unit is being installed. Thoughtful renovations include updated mechanicals, efficient forced air gas heating, central AC, refreshed lighting, flooring, and upgraded restrooms on multiple levels. Interior spaces are bright and adaptable with a mix of open work areas, private offices & conference or training rooms that can accommodate a single professional user or multiple tenants. The lower level walkout provides additional functional space ideal for storage, a secondary suite, client meeting areas or back-of-house operations. Outside, the site offers a partially fenced yard, new landscaping, and parking for 8-10 vehicles across paved and gravel surfaces. Located on Cleveland Street near Center Ridge Road with easy access to I-90 and downtown Elyria, the building benefits from strong street visibility and an estimated daily traffic count of approximately 10,000 vehicles, delivering excellent exposure for businesses that rely on local clientele. Zoned B-N Business-Neighborhood District, the property permits a wide array of uses including professional offices, financial services, child care, personal services, neighborhood retail, small restaurants, educational facilities and similar neighborhood-serving businesses, making it attractive to entrepreneurs, owners and investors. Additional features include a newer asphalt shingle roof, public water & sewer, security and storage options, and multiple entrance points for flexible circulation. This turnkey, updated commercial asset is ready for immediate occupancy and offers an exceptional combination of location, functionality and investment potential in a thriving neighborhood.
524 Cleveland Street, Elyria, Ohio 44035
Commercial Sale For Sale
 
											 
						- Joseph Zingales
- View website
- 440-296-5006
- 440-346-2031
- 
															josephzingales@gmail.com 
- 
															info@ohiohomeservices.net 
 
				 
                     
                     
                     
                     
                     
                     
                     
                     
                     
                     
                     
                     
                     
                     
                     
                     
                     
                     
                     
                     
                     
                     
                     
                     
                     
                     
                     
                     
                     
                     
                     
                     
                     
                     
                     
                     
                     
                     
                     
                     
                     
                     
                     
                     
                     
                     
                     
                     
                     
                    