Find your new home in Northeast Ohio

Property Description

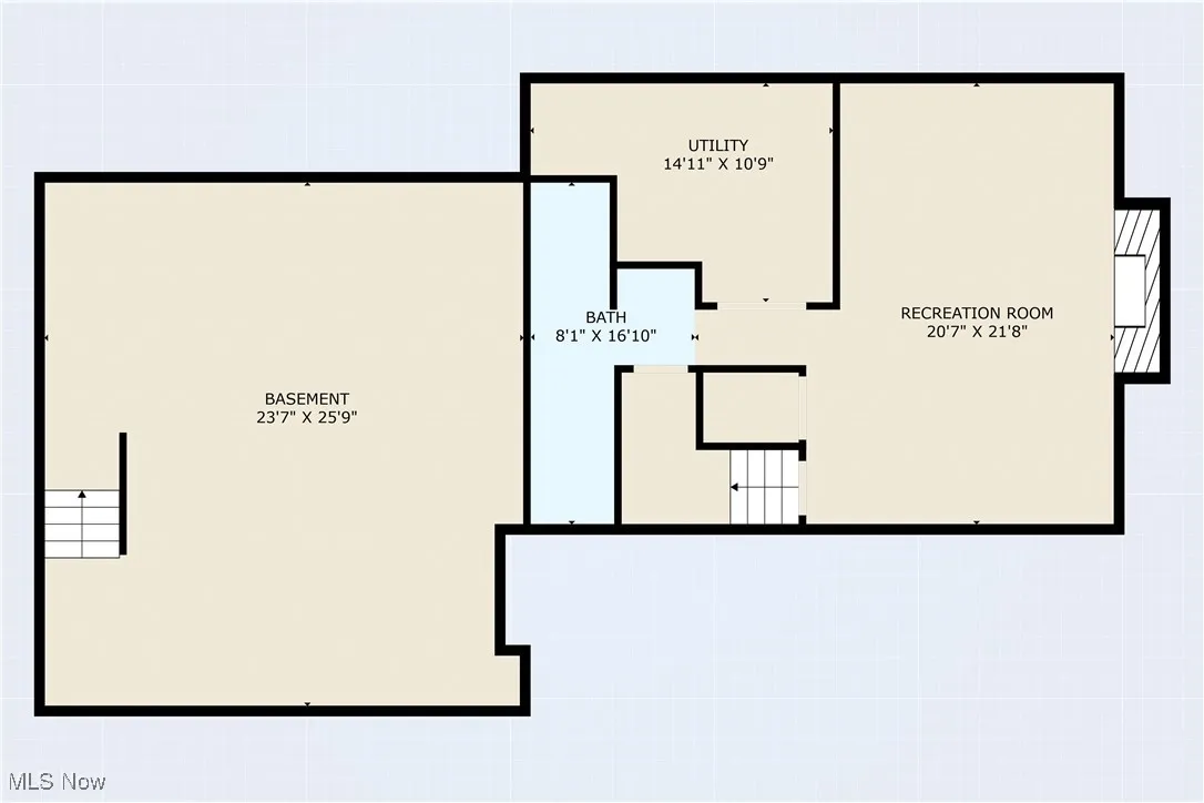
“Better Lake Than Never!” B.O.M. buyers financing fell though. Went pending in 6 days last time. hurry!! Welcome to this charming Cape Cod home offering 80 ft. of frontage on the Main Chain of Portage Lakes. Ideally located between West Reservoir & Turkeyfoot Lake. Nestled on a generously sized lot with beautifully low-maintenance landscaping, the outdoor space is designed for enjoyment & entertaining. You’ll love the large deck, cozy patio, firepit area & convenient lakeside parking for up to three boats. Not to mention a brand-new 2 car garage was added in 2020 with ample guest parking. Inside, features 3 bedrooms, 3 full bathrooms, & 3 fireplaces, offering warmth and comfort throughout. The kitchen is outfitted with ample cabinetry, Corian countertops, stainless steel appliances, &charming beamed ceilings. New dishwasher was added in 2025. The beamed ceilings continue into the dining & living areas, where you’ll find a full-wall brick fireplace & a unique indoor greenhouse atrium—perfect for whatever types of plants you like to grow! The main level includes a welcoming family room with another fireplace & French doors lead to a bright sunroom overlooking the lake with direct access to the deck. A 2nd master bedroom with an ensuite bath is also conveniently located on the main floor. Upstairs, you’ll find 2 additional bedrooms and another full bathroom, providing plenty of space. The newly renovated finished lower level adds even more living space with a large rec room, another fireplace, and a full bathroom. Major updates ensure peace of mind and modern convenience, including a new roof in 2020, furnace & central air in 2020, water softener in 2020, a brand-new septic system in 2023, and a new hot water tank in 2025. Located in New Franklin, this home is move-in ready and positioned for year-round enjoyment in one of Northeast Ohio’s most desirable lake communities. This is your chance to enjoy the lake life at its best—because it truly is Better Lake Than Never.

Features
: Gas, Forced Air
: Central Air
: Water, Golf Course
: Wood Burning, Gas, Living Room, Basement
: Garage Door Opener, Driveway, Garage, Detached, Electricity
: Deck, Patio
: Dishwasher, Refrigerator, Dryer, Microwave, Range, Washer, Water Softener, Freezer
: Dock, Boat Slip
: Block
2
: Ceiling Fan(s), Beamed Ceilings
Address Map
OH
Summit
New Franklin
44319
State Park
4131
Drive
W82° 27' 50.2''
N40° 58' 46.9''
West
Property Details
Active
Coldwell Banker Schmidt Realty
John P Scaglione
C405446
C23398
2601573
: Asphalt, Fiberglass
: Septic Tank
2
2
Cape Cod
: Vinyl Siding, Brick
: Well
3
$9,278
06/06/2025 21:21:30
No
Yes
No
No

4131 State Park Drive, New Franklin, Ohio 44319

Residential For Sale

3 Bathrooms
2,594 Sqft
$540,000
Listing ID #5129358
Basic Details
Property Type : Residential
Property Sub Type : Single Family Residence
Levels : Two
Listing Type : For Sale
Listing ID : 5129358
Price : $540,000
Rooms : 7
Bathrooms : 3
Square Footage : 2,594 Sqft
Year Built : 1957
Lot Area : 0.18 Sqft
Agent info
Berkshire Hathaway HomeServices Professional Realty
7466 Auburn Road Suite A, Concord, Ohio 44077
$
$ %
years
%
$ %per year
$ %per year

$

Contact Form
Basic Info
Contact Info
Next
Request Details
$
-
-
Sqft
Sqft
Submit