Find your new home in Northeast Ohio

Property Description

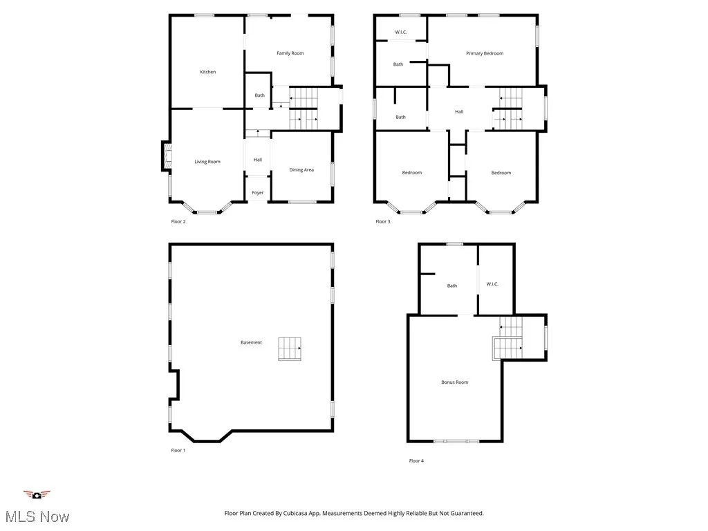
Located on the charming and tree lined Clarence Avenue, this spacious property provides three full floors of functional space and a full basement for plenty of storage. This home uniquely features two true primary suites with attached baths and walk in closets – one on the second floor as well as one occupying the full third floor. With an additional hall/guest bathroom on the second floor and a convenient half bath on the first floor, this home totals three and a half bathrooms above grade. With second floor laundry, this is truly functional space for modern living. The updated kitchen is a home cook’s dream, featuring both an AGA cooker and wall oven plus a large waterfall island worktop with spacious seating for four. From the kitchen, you can look out to the cozy living room and fireplace as well as into the dining room with tin ceiling detail. Additional first floor room off the entryway could be used as an office space or additional sitting area. Enjoy the close knit neighborhood while relaxing or entertaining on the wide front porch, or head to the grassy back yard with full privacy fence, concrete patio and rear porch. With Madison Park and Library just one block away and plenty of coffee shops, restaurants and shops in walking distance, this is a must see.

Features
: Heat Pump, Gas, Forced Air
: Central Air, Wall Unit(s)
: Neighborhood
: Gas Log
: Garage Door Opener, Garage, Detached
: Patio, Rear Porch, Front Porch
: Dishwasher, Refrigerator, Dryer, Microwave, Range, Washer, Built-in Oven, Freezer
: Block
2
Address Map
OH
Cuyahoga
Lakewood
44107
Clarence
1511
Avenue
W82° 13' 7.4''
N41° 28' 53.9''
Property Details
Active
Berkshire Hathaway HomeServices Professional Realty
MaryJo Scott
2020007865
20191
315-08-111
: Shingle, Asphalt
: Public Sewer
Colonial
: Other
: Public
1
$11,809
24/10/2025 16:44:31
No
Yes
No
No

1511 Clarence Avenue, Lakewood, Ohio 44107

Residential For Sale

4 Bathrooms
2,475 Sqft
$549,900
Listing ID #5166348
Basic Details
Property Type : Residential
Property Sub Type : Single Family Residence
Levels : Three Or More
Listing Type : For Sale
Listing ID : 5166348
Price : $549,900
Bathrooms : 4
Half Bathrooms : 1
Square Footage : 2,475 Sqft
Year Built : 1904
Lot Area : 0.17 Sqft
Agent info
Berkshire Hathaway HomeServices Professional Realty
7466 Auburn Road Suite A, Concord, Ohio 44077
$
$ %
years
%
$ %per year
$ %per year

$

Contact Form
Basic Info
Contact Info
Next
Request Details
$
-
-
Sqft
Sqft
Submit